DOI:
https://doi.org/10.14483/23448393.16956Publicado:
2020-10-05Número:
Vol. 25 Núm. 3 (2020): Septiembre - DiciembreSección:
Sección Especial: Mejores artículos extendidos - WEA 2020Design and Prototyping of an Electronic Cane for an Indoor Guide System for the Blind
Diseño y prototipado de bastón electrónico para un sistema de guía en interiores para invidentes
Palabras clave:
Electronic cane, indoor guide, mobile application, visual impairment (en).Palabras clave:
Aplicación móvil, bastón electrónico, discapacidad visual, guía en interiores (es).Descargas
Referencias
Ministerio de Salud y Protección Social, “Análisis de situación de salud visual en Colombia 2016”. [Online]. Available: https://www.minsalud.gov.co/sites/rid/Lists/BibliotecaDigital/RIDE/VS/PP/ENT/asis-salud-visual-colombia-2016.pdf
B. Stevenson and J. L. McQuivey, “The wide range of abilities and its impact on computer technology”, Forrester Research, 2003. Available: https://www.microsoft.com/en-us/download/details.aspx?id=18446
B. D. Collantes, “Diseño de un prototipo de un bastón inteligente con sensores para personas con discapacidad visual y física en la carrera de ingeniería en computación y redes”, Thesis, Universidad Estatal del Sur de Manabí, Manabí, 2020.
C. R. Reinoso, “Implementación de un bastón plegable electrónico con radar por ultrasonido y ubicación mediante GPS para personas con discapacidad visual”, Thesis, Universidad Tecnológica Israel, Quito, 2019. Available: http://repositorio.uisrael.edu.ec/handle/47000/2135
C. R. Rojas, “Implementación de un bastón detector de obstáculos elevados para personas invidentes”,
Thesis, Universidad de los Llanos, Villavicencio, 2016. Available: https://1library.co/document/y49p470z-implementacion-baston-detector-obstaculos-elevados-personas-invidentes.html
O. A. Murillo and C. A. Serna, “Prototipo de bastón inteligente para personas con limitación visual”, Thesis Universidad Católica de Pereira, Pereira, 2017. Available: https://repositorio.ucp.edu.co/bitstream/10785/4634/4/DDMIST18.pdf
P. Singkhamfu and A. Prasompon, “The Accuracy Enhancement of Consumer-Grade Global Positioning System (GPS) for Photogrammetric and City Mapping Determinations”, Int. J. Build., Urb., Interior, and Landsc. Tech., vol. 14, pp. 81-92, 2019. Available: https://ph02.tci-thaijo.org/index.php/BUILT/article/view/228169
NanJing Top Power ASIC Corp, “Datasheet TP4056 1A Standalone Linear Li-lon Battery Charger with Thermal Regulation in SOP-8,”, NanJing Top Power ASIC Corp, 2019.
Atmel Corporation, “Datasheet -ATmega328P”, Atmel Corporation, 2015.
ITead Studio, “Datasheet Hc-05 Bluetooth Module”, ITead Studio, 2010.
Fairchild Semiconductor Corporation, “Datasheet QRD1114 Reflective Object Sensor”, Fairchild Semiconductor Corporation, 2008.
E. Wise et al. “Indoor navigation for the blind and vision impaired: Where are we and where are we going?”, presented at: Int. Conf. Indoor Position. and Indoor Navig., IPIN, Sydney, Australia, November 13-15, 2012. https://doi.org/10.1109/IPIN.2012.6418894
Cómo citar
APA
ACM
ACS
ABNT
Chicago
Harvard
IEEE
MLA
Turabian
Vancouver
Descargar cita
Recibido: 23 de junio de 2020; Revisión recibida: 31 de agosto de 2020; Aceptado: 15 de septiembre de 2020
Abstract
Context:
Blindness is a physical-sensory disability that limits the ability of affected people to carry out daily-life activities and deteriorates their quality of life. It is estimated that there are 296.000 blind people throughout the Colombian territory.
Method:
This article presents the development of an electronic baton that works with a system of guiding lines and information points, together with an application for mobile devices. This research is based on the quantitative method, seeking to investigate the characteristics of the device in terms of its use. A descriptive investigation is performed which can be classified as ex post facto.
Results:
As a result, a device is developed which can guide a blind person to their destination in closed areas, although the time used for movement is greater compared to a journey with human assistance.
Conclusions:
There are solutions aimed at guiding a blind person in closed spaces that achieve this goal, although they require bulky hardware, which prevents the dimensions of the device from resembling those of the walking sticks normally used as a tool by the blind population. This limits the natural use of this kind of devices.
Keywords:
electronic cane, indoor guide, mobile application, visual impairment.Resumen
Contexto:
La ceguera es una discapacidad de tipo físico-sensorial que limita la capacidad de las personas afectadas para realizar actividades de la vida diaria y deteriora su calidad de vida. Se estima que hay 296.000 ciegos en todo el territorio colombiano.
Método:
Este artículo presenta el desarrollo de un bastón electrónico que funciona con un sistema de líneas guía y puntos de información junto con una aplicación para dispositivos móviles. Esta investigación parte del método cuantitativo y busca indagar sobre las características del dispositivo en cuanto a su uso. Se desarrolla una investigación descriptiva que puede catalogarse de ex post facto.
Resultados:
Como resultado se desarrolla un dispositivo capaz de guiar a una persona invidente a su destino en recintos cerrados, si bien el tiempo utilizado para el desplazamiento es mayor en comparación con un recorrido con asistencia humana.
Conclusiones:
Existen soluciones orientadas a guiar a una persona invidente en espacios cerrados que cumplen con este objetivo, aunque requieren un hardware voluminoso, lo que impide que las dimensiones del dispositivo se asemejen a las de los bastones normalmente usado como herramienta por la población invidente. Esto limita el uso natural de este tipo de dispositivo.
Palabras clave:
bastón electrónico, guía en interiores, aplicación móvil, discapacidad visual.Introduction
Blindness is a physical-sensory disability that limits the ability of affected people to carry out daily-life activities and deteriorates their quality of life.
The Analysis of the Visual Health Situation in Colombia 2016 Agreement 519 of 2015 by the Colombian Ministry of Health indicates that, according to what was reported by the World Health Organization (WHO) in their “Global Data on Visual Impairments of 2010”, the number of blind people worldwide was 39,365 million. In the Americas (Central and South America) there were 3.211 (8 %) million blind people. Of the total number of blind people, 4% corresponded to childhood blindness. It is estimated that there are 7.000 blind Colombians for every million inhabitants (296.000 blind throughout the country) [1]
Difficulty in moving autonomously and independently is one of the most common obstacles for people who suffer from visual impairment, a situation that, in addition to affecting their mobility, can cause them to face problems at an emotional level, as well as work and social interaction. However, this population has adopted different technologies to support their daily activities; 65% of visually impaired people use accessible technologies for their ease of use when performing specific tasks [2]Figure 1 shows the percentage of people who benefit from the use of inclusive technologies, and the reasons for their use are included in the quantitative data.
Figura 1: Evaluation in quantitative criteria of the use of accessible technologies used by people with visual disabilities and their purpose of use.
In the scientific literature, while searching the databases and metasearch engines, there is background related to the following keywords: cane AND guide AND blind AND (interiors OR “closed enclosure”). This implies a great variety of works that describe various technological solutions such as lenses, vests, and handcuffs, among others. For the sake of agreement, only some solutions that propose devices in the shape of a cane are listed in this article, such as the prototype of a smart cane with sensors for people with visual and physical disabilities, developed at the State UniverFigura 1. Evaluation in quantitative criteria of the use of accessible technologies used by people with visual disabilities and their purpose of use. Source: [2]. sity of South Manabí , which allows detecting obstacles from a distance by means of ultrasound sensors [3]. At the Israel University of Technology, a folding baton with ultrasound radar and GPS positioning was developed to monitor visually impaired people, with Bluetooth connectivity for mobile devices and an accelerometer to verify the correct position of use of the baton. It implemented an ARDUINO module, a battery, an audio device, and a battery charger module, all this together on one PCB [4].
An interesting solution is the implementation of a cane for the blind that can detect obstacles even above the user’s waist. This development is based on a PIC 12F675 microcontroller, an HC-SR04 ultrasonic proximity sensor, and audible and vibratory alarm elements. This device was developed at the Universidad de los Llanos in Villavicencio [5]. At the Universidad Católica de Pereira, a functional prototype of a smart cane was created which can help people with visual disabilities in their movement. The prototype generates an alert in the presence of nearby objects, and it has GPS, so that relatives or dependents can monitor the location and route of the person using the cane, through a web application in real-time [6]
The tools described above provide solutions related to the individual’s environment and seek to solve the prob- lem of taking the individual from one place to another using tools such as GPS, where the precision of the devices that use this technology limits their use indoors, especially having noted that the accuracy of GPS technology for civilian applications is approximately 3 meters [7].
The article aims to propose an innovative, efficient, and economic solution to the problem of autonomously guiding visually impaired people in closed spaces. It proposes the design and prototyping of an electronic baton for an indoor guidance system for blind people, which consists of an electronic baton, a mobile phone, a software application, guiding lines, and information points in barcode format. Inside the handle of the baton are the electronics, consisting primarily of a battery charging circuit, a rechargeable battery, a microcontroller, a wireless communication module, and an infrared light sensor inside the tip of the baton. The article aims to raise the answer to the question: Is it possible to meet the objective of independently guiding a blind person to their destination by implementing this kind of system?
Materials and methods
This research is based on the quantitative method and seeks to investigate the characteristics of the device in terms of its use, in order to verify how the device behaves when it is used by a person deprived of the sense of vision. Tests are carried out to validate the behavior of the device, with the purpose of making make decisions regarding its design. Therefore, a descriptive investigation is developed that can be classified as ex post facto, which allows identifying attributes of the electronic baton in integration with the interior guidance system during its use.
An intuitive use of the device is proposed for its development, that is to say that it must be easy to use, that it can be used without effort, considering the way in which the blind population normally use aid sticks, seeking the most natural use possible. Regarding the physical dimensions, the device has similar characteristics to the aid sticks normally used by the blind population, with the purpose of achieving a feeling of familiarity with the device, which allows easiness in its handling. For this reason, all the electronics of the device are inside the electronic baton.
Design and modeling
Next, the proposed solution is described. Figure 2 illustrates the main components that make up the system of guides in closed spaces for people with visual disabilities, which consists of a series of guides (i) that create a network of routes to the different destinations within the enclosure. At the beginning, at the end and at the intersection points of the network, there are information points (ii) (barcodes) that can be detected through an optical sensor at the tip of the electronic baton (iii), which is connected wirelessly to a mobile device (iv) with a software application that provides audible information to the user.
Figura 2: Shows a diagram of the elements that make up the guidance system in closed spaces for people with visual disabilities.
Figure 3 shows the 3D design of the electronic baton (1) made with a free version of the Sketchup application. The electronic baton consists of a 1 cm diameter aluminum cylinder (5), which connects one of its ends with the sliding tip (2), inside the sliding tip is the infrared light sensor (9), positioned at a maximum height of 5 mm. This distance is justified by operation requirements of the sensor. The sliding tip also contains a 1 cm diameter (10) sphere that facilitates movement with the cane and is self-contained in the sliding tip that surrounds 66,6% of the volume of the sphere, allowing the sphere to rotate freely in all directions while remaining fixed on the sliding tip. The opposite end of the aluminum tube connects the handle of the cane (3) that contains the electronics, which is joined with the cover of the handle (4). This joint is fixed by coupling screws, forming three cavities inside of the cane handle, where the recharge control system (8), the rechargeable battery or FEM (7), and the electronic control circuit (6) are located. This arrangement allows to connect both circuits to the FEM easily, using less wiring and allows containing the different electronic components within the handle of the cane, which results in the size of the handle of the cane being comfortable and practically the same as those commonly used by the blind population.
Figura 3: On the left, a bottom right diagonal view of the main components of the electronic baton. On the right, a topleft diagonal view of the main components of the electronic baton. Both figures are separated to provide information on the construction of the device.
Figure 4 shows the block diagram of the modules that make up the electronics of the device. It has a recharge control system, composed of an integrated charge management module (reference TP4056) [8], a FEM composed of a lithium-ion battery rechargeable, an electronic control circuit composed of an Arduino module with a microcontroller (Atmega reference 328P-MU) [9], a signal conditioning module that provides the infrared light sensor, a wireless connection module (reference HC-05) [10] that allows communication between the microcontroller, and the mobile device that contains the orientation software application. Finally, the module composed of the infrared light sensor (reference QRD1114) [11] is located at the tip of the cane.
Figura 4: Block diagram of the modules that make up the electronics found in the grip of the cane.
Calculations and technical considerations
The energy consumed by the modules that make up the system according to their technical specifications is summarized below:
Table I: Energy consumed by the modules that make up the system according to their technical specifications.
Below, the calculation of the total power consumed by the system is presented in Equations (1) to (4), for which it must be considered that the system generates a load for its operation which depends on the current or power required by each one of the elements of the system, where IP represents the current consumed by the device with reference TP4056, IQ represents reference QRD1114, IA represents Atmega 328P-MU, and IH represents reference HC-05.
Having determined the current consumed by the device, its autonomy can be estimated, considering the fact that, to maximize the useful life of the battery, discharges below 80% of its maximum capacity (2.600 mAh) should be avoided, so the battery can only supply 4/5 of its capacity, that is, 2.080 mAh. In Equations (5) to (8), the calculation of the autonomy of the device in hours is represented by variable A(H), and the capacity of the battery is represented by CB.
Tests
Before carrying out the tests, the participants (students of the TOOLS research hotbed of the AXON research group) were told how the system worked. They were also instructed in how blind people normally use the cane as a support tool in their movements.
During the development of the electronic baton, two types of tests were carried out. The first tests aimed to determine the frequency of movements of the baton to provide a reference to the user to effectively follow the guiding line, starting from the average time with which the user moves the cane from one side to the other. For the tests, all 4 participants were deprived of the sense of vision. They walked with the cane for 4 m marked with a measure tape. The movements of the cane were recorded during the journey with a camera capable of record- ing in slow motion. The data obtained from this test are presented in Figure 6.
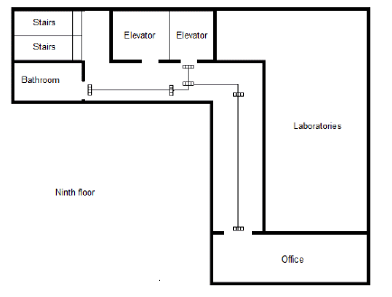
In the second test, three destinations were defined: the AXON research group office, the bathroom, and the elevator, located on the 9th floor of building J of the National Unified Corporation for Higher Education (CUN). The blindfolded participants made 10 timed tours between these destinations with the help of the electronic baton and an assistant. The route diagram is shown in Figure 5, and the timed average time results of the tours are presented in Table II.
Figura 5: Diagram of the routes taken during the tests with the help of the electronic baton and an assistant.
Table II: presents the timed average time results of the routes defined for the second test.
Results
This section presents the results obtained in the tests. The first test tries to determine the frequency with which the user moves the cane from side to side vs. the distance traveled, whose data are presented in Figure 6.
Table II presents the timed average time results of the routes defined for the second test.
Figura 6: Results obtained from testing frequency vs. distance, where the frequency of movement of the cane from one side to the other is analyzed by the distance of 4 different users.
As a result of the entire design, testing, and feedback processes, the electronic baton device was developed, whose electronics are presented in Figure 7, namely the modules and elements described above in the design and modeling section. Finally, the result of this process can be seen in Figure 8, which presents images of the developed prototype.
Figura 7: The image presents on the left and in the center views of the electronic baton prototype, on the right it presents an image of the parts printed on a 3D printer.
Figura 8: Schematic diagram of the electronics used in the electronic baton device.
Discussion
From Figure 6, it can be seen that there are differences in the distance vs. frequency with which different users move the cane from side to side. Additionally, these frequencies do not appear to be constant. By carefully observing all the graphs, it is made evident that there are important peaks in which said frequency drops notoriously. This is due to the fact that, on the test route, there were potholes on one side of the guiding line, near the 2 and 4 meter marks.We decided not to repeat the test under ideal conditions, since the existence of these potholes represent the possibility of having unforeseen events along the routes and present an opportunity to validate the operation of the cane in the presence of imperfections. Therefore, using the frequency with which the user moves the cane from one side to another in order to determine if it was following the guiding line was no longer a possibility, as it had been originally planned. This first observation forced a design change in the way it is verified whether the user is following the guiding line. It goes from detecting an average frequency of movement of the cane and generating a short audible beep when the instantaneous frequency of movement of the cane mat the average frequency, to just detecting the guiding line and generating a short audible beep each time the sensor passes over the line.
In Table II, it can be seen that the user is able to autonomously follow the routes to different destinations using the electronic baton, although the time used for the route with the cane is longer compared to receiving human assistance. This may be due to the fact that moving around when the environment is unknown generates a feeling of insecurity, whereas, if there is human assistance, the blind person moves at the speed of the human guide. Speaking of the experience with the participants, it could be stated that, as the user becomes familiar with the use of the tool, they feel more comfortable and confident in being able to autonomously reach their destination.
When comparing the developed electronic baton with other devices described in the scientific literature [4]- [6], it can be seen that most of them are focused on the detection of obstacles through the use of various techniques, generally through the implementation of ultrasound sensors. Those that focus on taking users from one place to another use techniques such as GPS, which has an accuracy of 3 meters for civil applications. While this may help guide them, it does not allow guiding the blind safely and autonomously in closed spaces. However, there are solutions for this [12], although they require bulky hardware, which prevents the dimensions of the device from resembling that of the canes normally used as an aiding tool by the blind population, thus limiting its natural use.
As future work, we propose the inclusion of sensors that allow the detection of obstacles while maintaining the shape of the device, so that it retains the closest possible resemblance to the canes normally used by the blind population, as well as generating a tracking function to follow the user’s steps to be able to know their location in case they need assistance.
Conclusions
The device is capable of taking a blind person to their destination within a closed area, providing audible information so that they can know at all times that they are following the guiding lines. Due to the physical characteristics of the device, its use is easy and natural for the visually impaired. Even though, when performing the tests, the time needed to carry out the tours with the device was greater than with the help of a person, the use of the tool provided users with confidence and independence. In turn, natural use of other solutions aimed towards the same objective of guiding blind people indoors is limited due to the volume of hardware.
The components of the baton are easily acquired and affordable, which makes this proposal viable for its im- plementation in government buildings, such as museums, schools, municipalities, among others, where it is de- sired to implement technologies that allow the inclusion of people with disabilities.
Referencias
Licencia
Derechos de autor 2020 Arnaldo Andres Gonzalez Gomez, Yesid Díaz Gutiérrez, Wilson David Flórez Barboza

Esta obra está bajo una licencia internacional Creative Commons Atribución-NoComercial-CompartirIgual 4.0.
A partir de la edición del V23N3 del año 2018 hacia adelante, se cambia la Licencia Creative Commons “Atribución—No Comercial – Sin Obra Derivada” a la siguiente:
Atribución - No Comercial – Compartir igual: esta licencia permite a otros distribuir, remezclar, retocar, y crear a partir de tu obra de modo no comercial, siempre y cuando te den crédito y licencien sus nuevas creaciones bajo las mismas condiciones.









2.jpg)












